Sparsam und solide
Guter alter Klassiker in Holzfertigbauweise
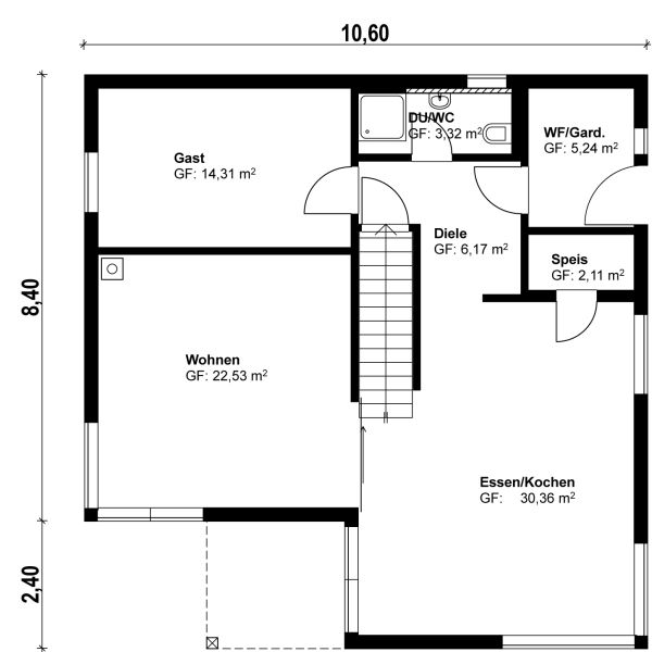
Das gute alte Einfamilienhaus, seine Architektur ist praktisch, der Stil schlicht. Aber es wird immer wieder gern gebaut, weil das Modell für viele seit über einem halben Jahrhundert den Traum vom eigenen Zuhause erfüllt.
Heute muss es ein sparsames und energieeffizientes Gebäude sein. Lehner Haus baut mit Ihnen das ideale Einfamilienhaus in Holzfertigbauweise, schnell, zuverlässig und in bester schwäbischer Qualität.





